忘记密码?

账号密码登陆
手机验证码快捷登录
没有帐号?
注册账号
《元日用户使用协议》
已有账号?
元日官网欢迎您!
VR 图片
石板巷
  • 厨房
  • 客厅
  • 主卧
  • 次卧
  • 餐厅
  • 卫生间
  • 户型图
  • 户型图

关注
110
43703 元/平方米
首付及税费情况请咨询经纪人
3 室 1 厅 2 卫 25.17平米

低楼层(共6层) 简装

房源编号 202405020023
核验统一编码 231126OD590513 备案号
所在区域 拱墅
小区名称 石板巷
发布时间 2024-05-09
扫码进入微店
李松峰 华邦
19906799057 在线问 通话受虚拟化隐私保护,请放心拨打

服务承诺: 真实房源 免费看房 全程陪护

房源基本信息
  • 小区名称

    石板巷
  • 建房年代

  • 房源类型

    住宅
  • 房源面积

    25.17平方米
  • 房屋单价

    43703元/m2
  • 房源户型

    3室1厅2卫
  • 所在楼层

    低楼层(共6层)
  • 装修程度

    简装
  • 房源朝向

注:房源介绍:“房源户型,装修程度,房源面积,建房年代,房源朝向,参考首付,房源类型”仅供参考,购房时请以实际产证为准
此房源照片
厨房
厨房
客厅
客厅
主卧
主卧
次卧
次卧
餐厅
餐厅
卫生间
卫生间
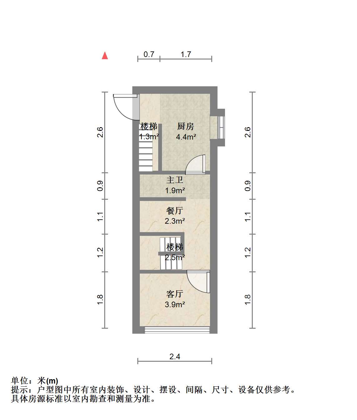
户型介绍
item.title                                             石板巷小区二手房-户型图                                                                                  注:户型图、照片,存在绘制误差,仅供参考,实际户型图、照片以实地勘察为准。 此房源已支持查看三维立体户型 立即看房 item.title                                             石板巷小区二手房-户型图                                                                                  注:户型图、照片,存在绘制误差,仅供参考,实际户型图、照片以实地勘察为准。 此房源已支持查看三维立体户型 立即看房
税费计算器 房贷计算器

税费、房贷信息仅供参考,具体金额请以实际发生为准。

住宅类型
计征方式
房产购置年限
卖房家庭唯一
买房家庭首套
房屋面积
平米
房屋总价
万元
小区概况

石板巷

小区在售房源7

  • 37594元/m2
  • 杭州市城建开发集团有限公司
  • 3
  • 无物业管理服务
  • 查看小区详情
地图
特色服务

真实房源 找房便捷

元日为您提供真实优质房源信息:房源真实存在、真实产权、真实委托、真实价格、真实图片,囊括多种维度的找房功能,根据找房需求准确推荐优质房源,PC官网与APP会员信息同步,随时随地提供便捷的找房服务。

资金监管 安全保障

交易资金打入监管银行保证金账户,买方、卖房、银行及经纪服务公司四方共同监管,保证交易过程中资金安全。

高效售后 专业陪同

签约完成之后产权过户、按揭办理、物业交割等售后环节经纪服务人员仍将提供高效、专业的服务,并详述流程及所需材料,全程陪同完成办理。

流程透明 交易安心

交易流程可在会员中心查看,知晓每一步流程办理时间及办理人员,确保每一次交易省心安心。

地理位置:

杭州市拱墅区潮王路225号红石中央大厦24F

App下载

官方微信

元日 在线人工服务9:00-18:30 ×