忘记密码?

账号密码登陆
手机验证码快捷登录
没有帐号?
注册账号
《元日用户使用协议》
已有账号?
元日官网欢迎您!
VR 图片
武林壹号
  • 房间
  • 客厅
  • 厨房
  • 阳台
  • 房间
  • 房间
  • 房间
  • 餐厅
  • 其它
  • 卫生间
  • 卫生间
  • 卫生间
  • 卫生间
  • 卫生间
  • 户型图

改善优选 无增值税

关注
4500
154110 元/平方米
首付及税费情况请咨询经纪人
4 室 2 厅 3 卫 南北 292平米

中楼层(共12层) 精装 2016年建

房源编号 hdxx1904170435
核验统一编码 250517RN679381 备案号
所在区域 拱墅
小区名称 武林壹号
发布时间 2025-08-15
扫码进入微店
袁莉 绿城置换
我与业主签订委托,了解房源交易属性
18694577246 在线问 通话受虚拟化隐私保护,请放心拨打

服务承诺: 真实房源 免费看房 全程陪护

房源基本信息
  • 小区名称

    武林壹号
  • 建房年代

    2016年
  • 房源类型

    住宅
  • 房源面积

    292平方米
  • 房屋单价

    154110元/m2
  • 房源户型

    4室2厅3卫
  • 所在楼层

    中楼层(共12层)
  • 装修程度

    精装
  • 房源朝向

    南北
注:房源介绍:“房源户型,装修程度,房源面积,建房年代,房源朝向,参考首付,房源类型”仅供参考,购房时请以实际产证为准
此房源照片
房间
房间
客厅
客厅
厨房
厨房
阳台
阳台
房间
房间
房间
房间
房间
房间
餐厅
餐厅
其它
其它
卫生间
卫生间
卫生间
卫生间
卫生间
卫生间
卫生间
卫生间
卫生间
卫生间
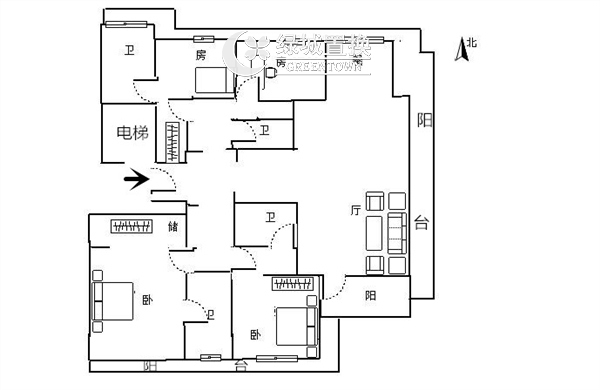
户型介绍
item.title                                             武林壹号小区二手房-户型图                                                                                  注:户型图、照片,存在绘制误差,仅供参考,实际户型图、照片以实地勘察为准。 此房源已支持查看三维立体户型 立即看房
税费计算器 房贷计算器

税费、房贷信息仅供参考,具体金额请以实际发生为准。

住宅类型
计征方式
房产购置年限
卖房家庭唯一
买房家庭首套
房屋面积
平米
房屋总价
万元
小区概况

武林壹号

小区在售房源16

  • 141107元/m2
  • 杭州滨绿房地产开发有限公司
  • 9
  • 杭州滨江物业管理有限公司
  • 查看小区详情
地图
特色服务

真实房源 找房便捷

元日为您提供真实优质房源信息:房源真实存在、真实产权、真实委托、真实价格、真实图片,囊括多种维度的找房功能,根据找房需求准确推荐优质房源,PC官网与APP会员信息同步,随时随地提供便捷的找房服务。

资金监管 安全保障

交易资金打入监管银行保证金账户,买方、卖房、银行及经纪服务公司四方共同监管,保证交易过程中资金安全。

高效售后 专业陪同

签约完成之后产权过户、按揭办理、物业交割等售后环节经纪服务人员仍将提供高效、专业的服务,并详述流程及所需材料,全程陪同完成办理。

流程透明 交易安心

交易流程可在会员中心查看,知晓每一步流程办理时间及办理人员,确保每一次交易省心安心。

地理位置:

杭州市拱墅区潮王路225号红石中央大厦24F

App下载

官方微信

元日 在线人工服务9:00-18:30 ×